Fettle Studio / Turning Earth Ceramics Studio







Design advice for the internal layouts and joinery of Turning Earth Ceramics Studio in Hoxton.
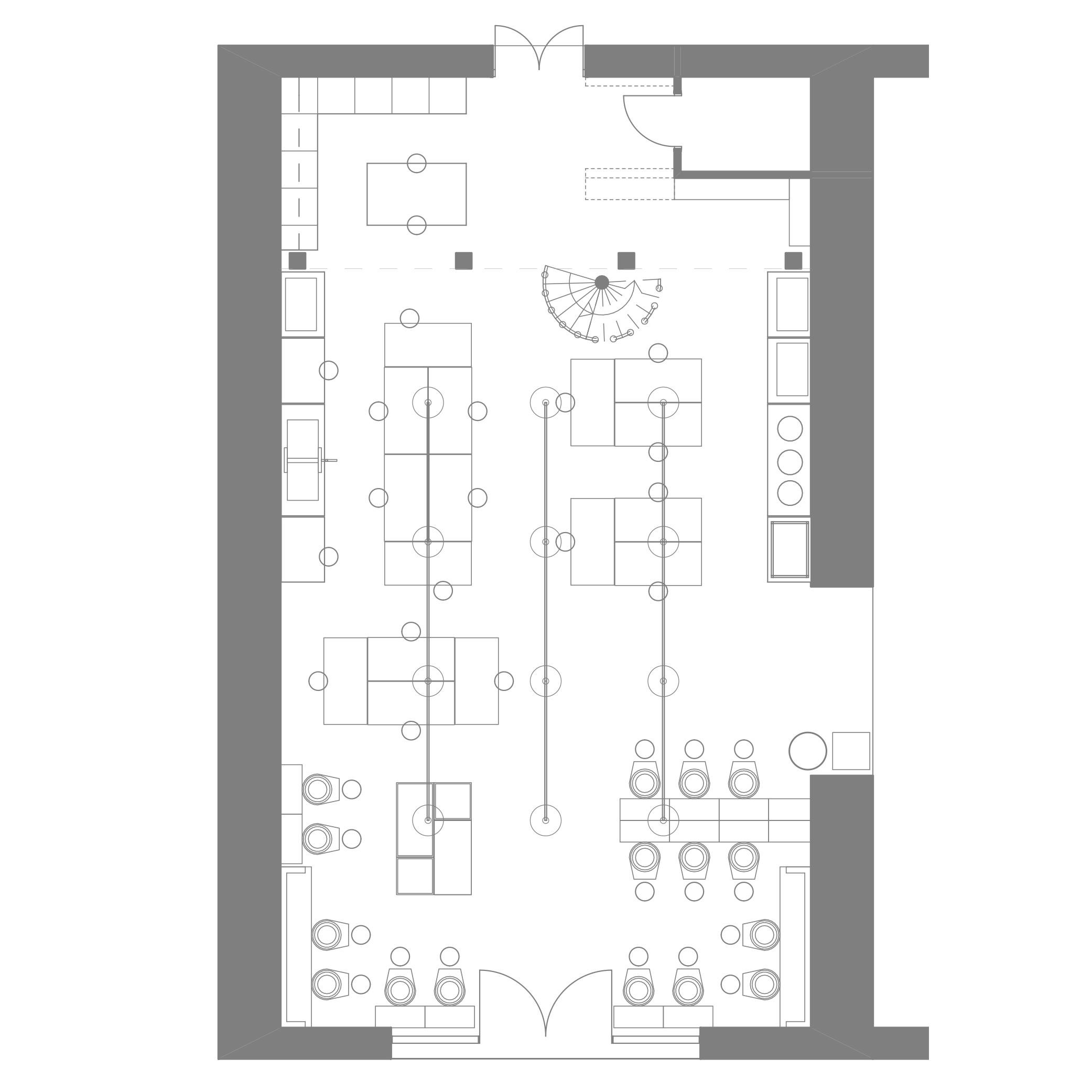
Turning Earth Hoxton is a shared ceramics studio with approx 100 members. Located within two brick railway arches, the space features work tables, wheels, sinks, kilns, and members’ shelving. The studio regularly hosts a ceramics market which welcomes the public in their hundreds.
The studio is undergoing a revamp to revitalise the members' arch, following Lydia’s design advice. The new designs improve and expand the workspaces, throwing areas and storage to create a spacious, functional, welcoming and beautiful environment for making and showcasing ceramics.
Turning Earth Hoxton is a shared ceramics studio with approx 100 members. Located within two brick railway arches, the space features work tables, wheels, sinks, kilns, and members’ shelving. The studio regularly hosts a ceramics market which welcomes the public in their hundreds.
The studio is undergoing a revamp to revitalise the members' arch, following Lydia’s design advice. The new designs improve and expand the workspaces, throwing areas and storage to create a spacious, functional, welcoming and beautiful environment for making and showcasing ceramics.