Fettle Studio / Earlsfield Business Centre, SW18
Earlsfield Business Centre is a large scale workspace located within an industrial-style warehouse in south west London.
The former auction house was previously divided into cellular offices in the 2000s. Workspace provider, Needspace, recognised the need to upgrade the offering to provide shared kitchen, breakout and amenity spaces for their tenants.
The former auction house was previously divided into cellular offices in the 2000s. Workspace provider, Needspace, recognised the need to upgrade the offering to provide shared kitchen, breakout and amenity spaces for their tenants.


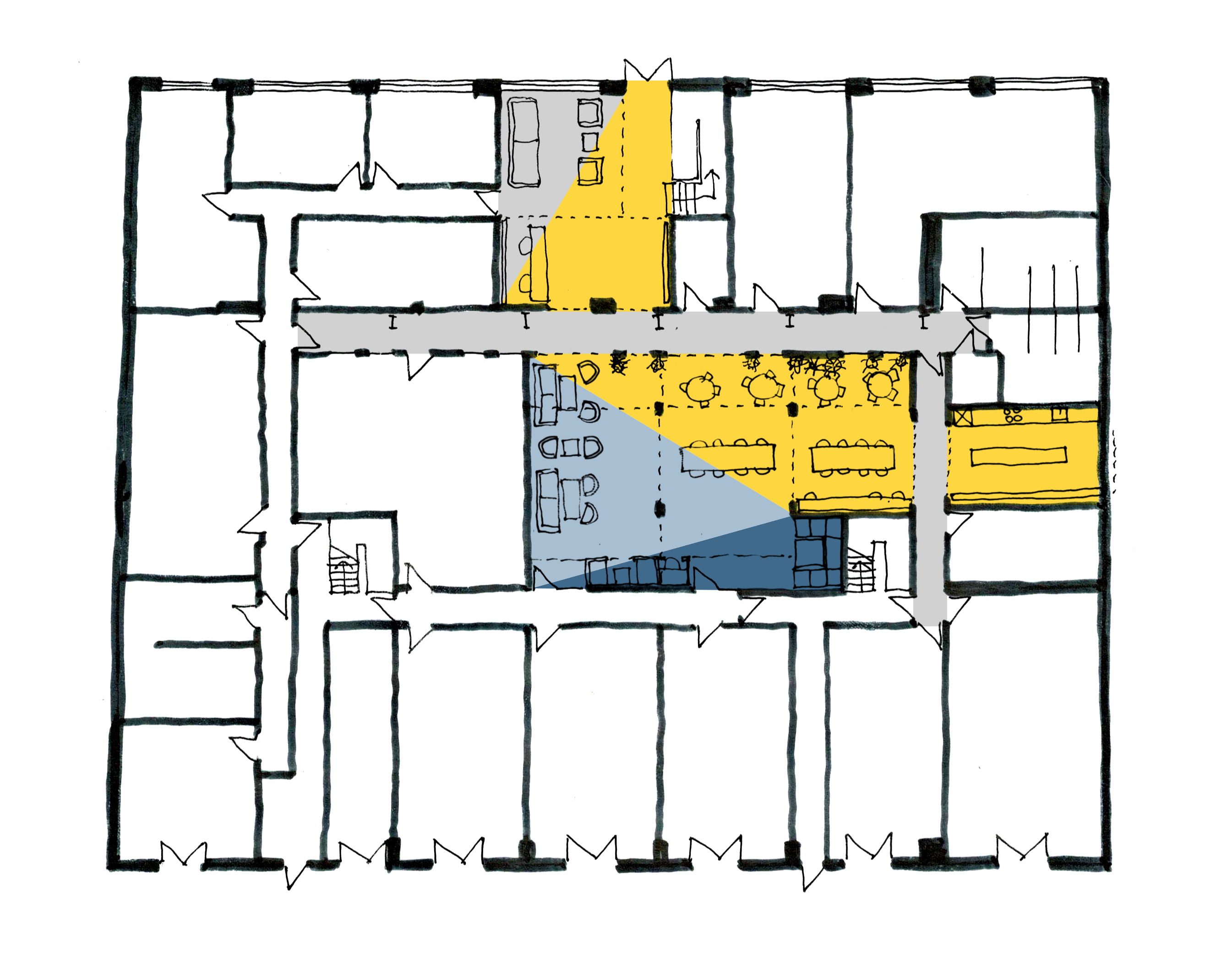
The plan evolved as a series of linked shared spaces, connecting onto the internal corridor with lined openings, top lit via double height voids, zoned through colour and geometry, with industrial materials and references.




Fettle Studio undertook all architectural and interior design services, including layout, selection of finishes and loose furnishings, bespoke furniture and fitted joinery design, and coordination with suppliers, fabricators and contractors, to see the project from start to completion.




